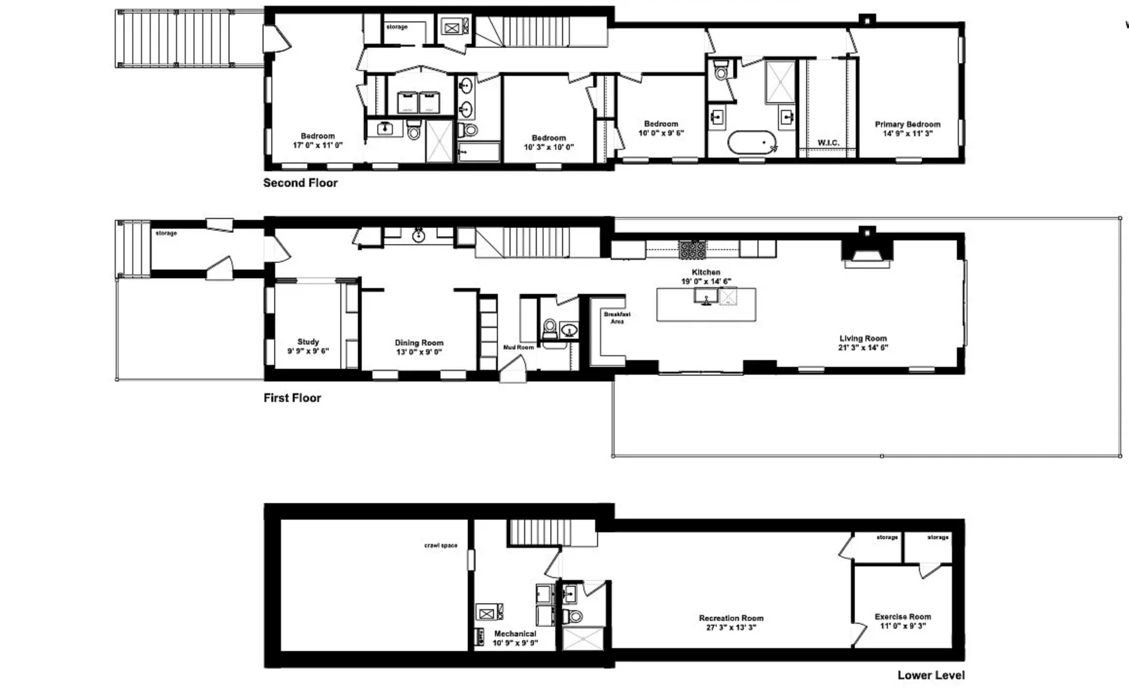
1639 N North Park

with SPACE Architects + Planners in Chicago, IL

4,000 sqft, renovation of a historic 19th century cottage in Chicago’s Old Town Triangle.

This 1896 Chicago workers' cottage renovation is located in a landmarked district and required extensive collaboration with neighborhood organizations and the city of Chicago in order to get permits approved for construction. In 2020 this home was awarded the Preservation Excellence Award by the Chicago landmarks commission.

 

 

 
© Urban Remains

© Urban Remains